Колонны металлические двухветвевые

При строительстве зданий промышленного назначения с кранами большой грузоподъемности (свыше 50 т) активно используются двухветвевые металлические колонны. Чаще всего это большие цеха, например, металлургического производства. Причиной такой популярности колонн является их способность нести большие нагрузки, при этом материалоемкость такого изделия невелика, монтаж также не представляет сложности. Целесообразность расхода материала делает возводимые здания функциональными и при этом экономичными, что и требуется для склада, ангара или цеха.

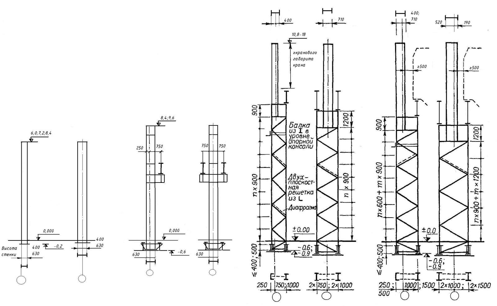
Фото металлических двухветвевых колонн, изготовленных нашей компанией в Уфе:

Заказать такие металлоконструкции как стандартные, так и по чертежам заказчика вы всегда можете в ООО «Индустрия сварки». Мы не первый год занимаемся производством металлоконструкций для быстровозводимых сооружений – в нашем распоряжении имеется необходимое оборудование и производственные площади. За годы работы наш клиент-лист пополнился благодарными заказчиками из многих городов Республики Башкортостан. Профессиональный подход, качественная производственная база и опытный персонал позволяют реализовать заказ любых объемов и сложности.

Конфигурации металлических колонн

Конфигурация двухветвевых колонн определяется расчетными нагрузками, грузоподъемностью кранового оборудования в цеху и прочими факторами. Также качественные металлоконструкции должны обладать необходимой коррозионной стойкостью, что обеспечивает сохранение целостности конструкции и ее несущей способности в течение десятков лет. При необходимости колонны покрываются специальным составом с повышенным классом антикоррозионной защиты для работы в агрессивных средах.

Почему стоит обратиться именно к нам?

Обратившись к нам, вы сможете разместить заказ на колонны металлические двухветвевые с учетом всех пожеланий клиента и получить их по цене производителя. Более того, вы можете заказать у нас комплекс услуг, включая транспортировку и монтажные работы, что позволит получить готовый каркас цеха в оговоренные сроки.

Оцените все преимущества сотрудничества с ООО «Индустрия сварки» в Уфе. Для получения консультации или размещения заказа стоит связаться с нашими специалистами по телефону +7 (929) 234 76 54. Также можно отправить заявку на электронную почту bashkortstan@svarkaperm.ru.


Для заказа вы можете обратиться к менеджерам нашей компании
по телефону:+7 (929) 234 76 54 или отправить заявку на нашу
электронную почту:bashkortstan@svarkaperm.ru


Форма заказа